Generic selectors
Exact matches only
Search in title
Search in content
Post Type Selectors

Fusível NH gL-gG / aR

FUSÍVEL NH gL-gG / aR

Introdução

O fusível NH foi projetado para garantir proteção contra sobrecorrentes e curtos-circuitos. Ideal para sistemas elétricos industriais e prediais. Disponíveis nas versões retardada (classe gL/gG) e ultra-rápida, esses dispositivos cobrem uma ampla faixa de correntes nominais, de 6A a 1250A, com seis tamanhos distintos (00, 0, 1, 2, 3 e 4). Fabricados com cerâmica de alta resistência, operam em 500 Vca e oferecem desempenho confiável em diversas aplicações. Também contamos com as respectivas bases porta-fusíveis para instalação segura e padronizada.

Fusível NH gL-gG / aR: Proteção Segura e Eficiente

  • Classes de Utilização:

    • gL/gG (proteção geral contra sobrecorrentes e curtos)

    • aR (proteção de semicondutores — ação ultra-rápida)

  • Corrente Nominal:

    • De 6A até 1250A

  • Tensão Nominal:

    • 500 Vca (em média)

  • Tamanhos Disponíveis:

    • NH 00, 0, 1, 2, 3 e 4

  • Material do Corpo:

    • Cerâmica de alta resistência térmica e mecânica

  • Elemento Fusível:

    • Em prata ou cobre estanhado, garantindo rápida atuação

  • Capacidade de Interrupção:

    • Alta capacidade de ruptura para máxima segurança

  • Aplicações Típicas:

    • Sistemas de distribuição elétrica

    • Bancos de capacitores

    • Equipamentos industriais

    • Proteção de inversores, UPS e drives (aR)

  • Montagem:

    • Instalação em bases NH padronizadas

O fusível NH funciona como dispositivos de proteção que interrompem o circuito elétrico quando ocorre uma corrente acima do limite seguro. Eles contêm um elemento metálico (como prata ou cobre) que derrete ao atingir determinada temperatura, causada pelo excesso de corrente.

Fusível NH gL/gG

  • Finalidade: Proteção total de cabos e equipamentos contra sobrecargas e curtos-circuitos.

  • Ação: Atua tanto em correntes moderadas (sobrecarga) quanto em altos picos (curto).

  • Aplicação: Uso geral em instalações elétricas industriais e prediais.

Fusível NH aR

  • Finalidade: Proteção de equipamentos eletrônicos sensíveis, como semicondutores.

  • Ação: Atua de forma ultra-rápida, apenas contra curto-circuito, evitando danos antes que os componentes aqueçam.

  • Aplicação: Inversores, retificadores, drives, UPS e outros equipamentos de potência.

Confira outros produtos  em nosso site

Principais Características do FUSÍVEL NH gL-gG / aR
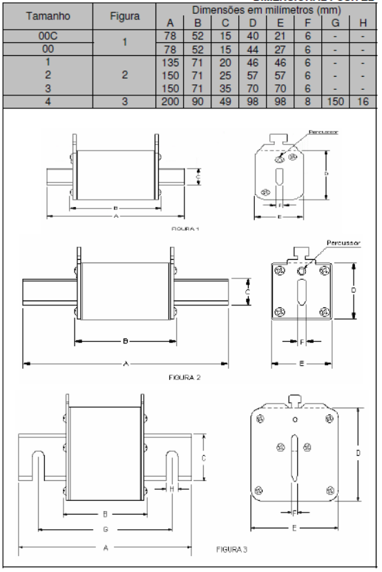
Dimensões do FUSÍVEL NH gL-gG / aR